НСК

НедвижимостьНовостройкиСтроительствоПрограммы поддержкиНалоги

Добавить объявление
 Личный кабинет   

Все новостройки Новосибирска

Планировки квартир Коминтерна, второй дом, ЖК Gorizont (Горизонт)


Коминтерна, второй дом:   о новостройке  |  о застройщике


Класс жильяТиповая новостройка Квартир на этаже8 квартир на этаже в среднем Отделка квартир от застройщика Без отделки + Под ключ Высота потолкаВысота потолка 2,72 - 2,87 м



Дом по улице Коминтерна находится в Дзержинском районе. Сдача новостройки запланирована на 4 кв. 2027 года. Здание состоит из 15 этажей. Технология строительства: монолитный каркас, стены из кирпича. Дом относится к типовому, стандартному жилью (подробнее о классах жилья).

На каждом этаже новостройки расположено около 8 квартир. Это средние показатели для городской недвижимости, достаточно неплохие, вписывающиеся в правильную квартирографию и стандартную разбивку по площади квартир и количеству комнат.

Еще о новостройке по ул.Коминтерна, второй дом


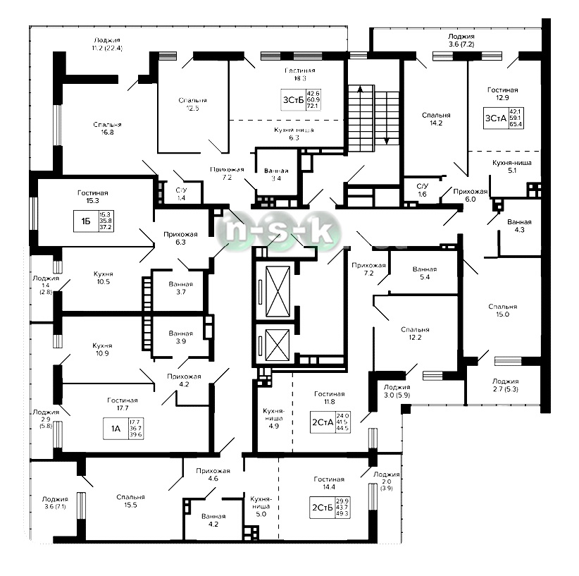
Общий план этажа
Коминтерна, второй дом, общий план этажа



открыть в отдельном окне

Коминтерна, второй дом, общий план этажа



открыть в отдельном окне

Коминтерна, второй дом, общий план этажа



открыть в отдельном окне



Поиск новостройки по улице

Улица  (введите только улицу, без номера дома)


Статьи о недвижимости

Ремонт «под ключ» в 2025 году
от застройщиков Новосибирска


Большая обзорная статья о
новостройках с полной отделкой:
кто предлагает в Новосибирске
и как это выглядит

Новостройки по срокам сдачи

 Срок сдачи - 2025 г.

 Срок сдачи - 2026 г.

 Срок сдачи - 2027 г.

 Срок сдачи - 2028 г.

 Срок сдачи - 2029 г.

Строящиеся дома по районам

Дзержинский район

Заельцовский район

Железнодорожный район

Калининский район

Кировский район

Ленинский район

Октябрьский район

Первомайский район

Центральный район

Советский район

ВАСХНИЛ (Краснообск)

Кольцово


Сданные новостройки в Новосибирске по районам

Дзержинский район

Заельцовский район

Железнодорожный район

Калининский район

Кировский район

Ленинский район

Октябрьский район

Первомайский район

Центральный район

Советский район

ВАСХНИЛ (Краснообск)

Кольцово


Сколько должен строиться жилой дом

Максимальные (предельные) сроки строительства многоквартирных жилых домов в России

Классы жилья: типовое, комфорт, бизнес - в чем разница?

Застройщики часто завышают класс новостройки в маркетинговых целях – чтобы продать подороже.

Хрупкий мир ЖСК

Законы о защите дольщиков не распространяются на членов жилищно-строительных кооперативов

Отделка под ключ

Как выглядит "отделка под ключ", выгодно ли, кто продает в Новосибирске

еще о новостройках и недвижимости


наверх



О проектеКарта сайтаОбратная связь, контактыСоглашение об использовании сайта