НСК

НедвижимостьНовостройкиСтроительствоПрограммы поддержкиНалоги

Добавить объявление
 Личный кабинет   

Все новостройки Новосибирска

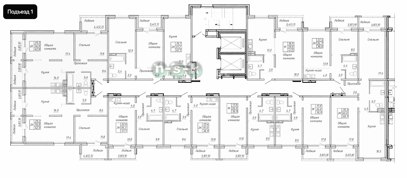
Планировки квартир Связистов, 13/1, ЖК Дуэт (Квартет)


Связистов, 13/1:   о новостройке  |  фотоотчет  |  о застройщике


Класс жильяТиповая новостройка Квартир на этаже10 квартир на этаже в среднем Отделка квартир от застройщика Квартиры под самоотделку Высота потолкаВысота потолка 2,73 м



Дом по улице Связистов находится в Ленинском районе. Объект введен в эксплуатацию в 2025 году. Здание состоит из 17 этажей. Технология строительства: панельные блоки. Дом относится к типовому, стандартному жилью (подробнее о классах жилья).

На каждом этаже новостройки расположено около 10 квартир. Для современной новостройки это пограничные показатели: чуть больше квартир на лестничной клетке, и о комфортном проживании остается только мечтать. Исключение составляют нестандартные подъезды, объединяющие несколько секций.

Еще о новостройке по ул.Связистов, 13/1


Общий план этажа
Связистов, 13/1, общий план этажа

План до 12 этажа

открыть в отдельном окне

Связистов, 13/1, общий план этажа

План 12-17 этажей

открыть в отдельном окне



Квартиры в этом доме - от 4450 до 7500 тысяч рублей - показать



Поиск новостройки по улице

Улица  (введите только улицу, без номера дома)


Статьи о недвижимости

Ремонт «под ключ» в 2025 году
от застройщиков Новосибирска


Большая обзорная статья о
новостройках с полной отделкой:
кто предлагает в Новосибирске
и как это выглядит

Новостройки по срокам сдачи

 Срок сдачи - 2025 г.

 Срок сдачи - 2026 г.

 Срок сдачи - 2027 г.

 Срок сдачи - 2028 г.

 Срок сдачи - 2029 г.

Строящиеся дома по районам

Дзержинский район

Заельцовский район

Железнодорожный район

Калининский район

Кировский район

Ленинский район

Октябрьский район

Первомайский район

Центральный район

Советский район

ВАСХНИЛ (Краснообск)

Кольцово


Сданные новостройки в Новосибирске по районам

Дзержинский район

Заельцовский район

Железнодорожный район

Калининский район

Кировский район

Ленинский район

Октябрьский район

Первомайский район

Центральный район

Советский район

ВАСХНИЛ (Краснообск)

Кольцово


Сколько должен строиться жилой дом

Максимальные (предельные) сроки строительства многоквартирных жилых домов в России

Классы жилья: типовое, комфорт, бизнес - в чем разница?

Застройщики часто завышают класс новостройки в маркетинговых целях – чтобы продать подороже.

Хрупкий мир ЖСК

Законы о защите дольщиков не распространяются на членов жилищно-строительных кооперативов

Отделка под ключ

Как выглядит "отделка под ключ", выгодно ли, кто продает в Новосибирске

еще о новостройках и недвижимости


наверх



О проектеКарта сайтаОбратная связь, контактыСоглашение об использовании сайта